ГлавнаяГотовый арендный бизнес — Червишевский тракт, 31, к 1

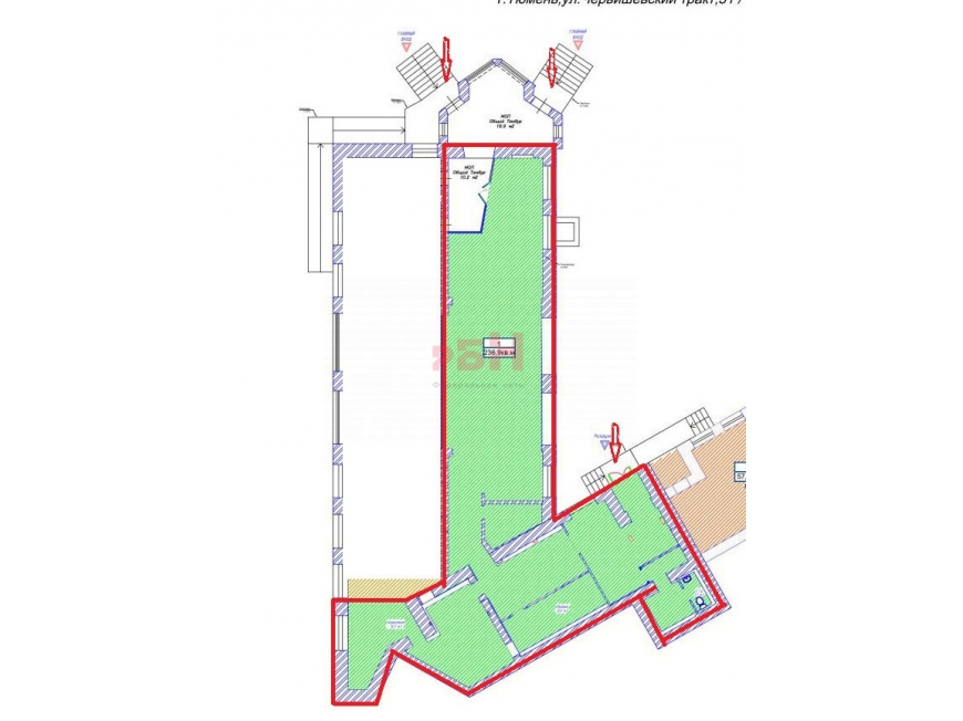
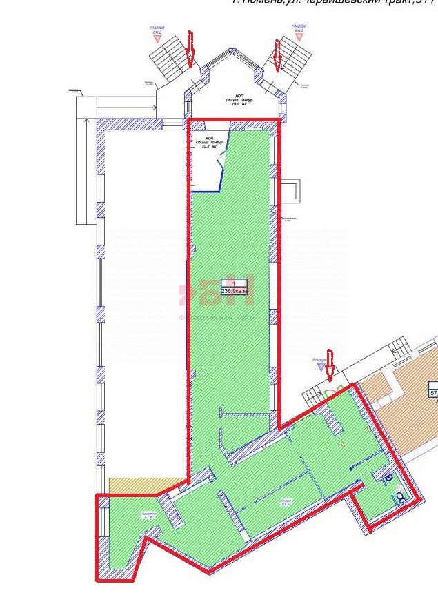
Червишевский тракт, 31, к 1,
237.00 м2

33 500 000 руб.

141350 руб./м2

Следить за ценой


Площадь: 237.00 м2

Окупаемость, лет: 8


Уникальное предложение для инвесторов! Продается торговое помещение с действующим арендатором -федеральный сетевой продуктовый ретейл ЯРЧЕ! Окупаемость 8 лет!
  • первая линия
  • отдельный вход
  • трафик
  • долгосрочный договор аренды
  • идеально для тех, кто ищет надежную инвестицию в недвижимость с предсказуемым доходом и минимальными рисками
  • МАП - 308 100 тыс/мес, коммунальные платежи оплачивает арендатор


Звоните прямо сейчас, чтобы узнать детали, посмотреть помещение и договор аренды!
_______________________________________________
Регион Бизнес Недвижимость
Коммерческая недвижимость
Без комиссии для покупателя
Арт. 111178661

Специалист

Оржеховская Юлия

+7-951-262-99-28

или оставьте ваш номер,
и я перезвоню в течение 5 минут

Согласен с Политикой конфинденциальности и с Политикой оператора в отношении обработки персональных данных

Отправляя заявку вы соглашаетесь на обработку персональных данных

Похожие объекты

Посмотреть другие объявления в этой категории